Appartamento in vendita a Giardini Naxos
Italiano
65.077 €

Appartamento in vendita a Giardini Naxos

Appartamento in vendita • Giardini Naxos - Via Ticino, 23
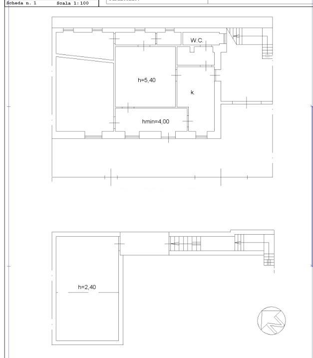
1 - appartamento sito in giardini naxos (messina) via ticino n°23, composto da: ingresso, soggiorno-pranzo, disimpegno, cucina, due camere, wc, due balconi ed una chiusura sottobalcone a veranda. posto al piano 1, sviluppa una superficie lorda complessiva di circa mq 123.
la struttura portante è in cemento armato, tramezzature in mattoni forati, gli intonaci interni sono di tipo civile tradizionale, tinteggiati con pittura tipo ducotone ad eccezione dei locali w.c. e cucina che presentano rivestimento in mattonelle di ceramica. le pavimentazioni sono in mattonelle di gres o ceramica; gli infissi interni sono realizzati in legno mentre quelli esterni in alluminio e vetro.
il locale è dotato di impianto elettrico, ed idrico-sanitario sottostraccia. l’impianto di condizionamento è realizzato con pompe di calore monosplit, l'impianto di riscaldamento e termico-sanitario sono alimentati da caldaia a gas. 2- box sito in giardini-naxos (messina) via ticino n°23, composto da vano unico posto al piano primo sottostrada, sviluppa una superficie lorda complessiva di circa mq 39.
la struttura portante è in cemento armato, tramezzature in mattoni forati, gli intonaci interni sono di tipo civile a goccia le pavimentazioni sono in mattonelle di graniglia di marmo, la saracinesca d'ingresso e del tipo avvolgibile motorizzata in lamiera zincata. il locale è dotato di impianto elettrico del tipo a vista.

Le foto pubblicate nel presente annuncio e la planimetria allegata potrebbero essere materiale di repertorio. La documentazione relativa all’immobile sarà consultabile previo appuntamento presso la nostra sede.

Astexte è un punto di riferimento nel settore delle aste immobiliari e nella gestione dei crediti deteriorati, i cosiddetti NPL, fondato da professionisti con oltre vent'anni di esperienza nel campo immobiliare.

Il nostro obiettivo principale è assistere i clienti nell'acquisizione di immobili all'asta e nella risoluzione delle situazioni debitorie complesse, operando sempre nel rispetto dei più elevati standard morali ed etici.

Di seguito i servizi offerti dalle nostre agenzie:

* Analisi Tecnica e Legale: Prima di procedere, esaminiamo attentamente ogni aspetto tecnico e legale della procedura per garantire la massima trasparenza e sicurezza.

* Valutazione di Metodi Alternativi: Oltre all'asta, esploriamo altre opzioni per l'acquisizione del bene, assicurando di trovare la soluzione più adatta alle tue esigenze.

* Consulenza Finanziaria Personalizzata: Grazie alla preziosa collaborazione con i nostri partner di Creditoxte, un'azienda registrata nell'elenco dei mediatori creditizi presso l'OAM con il numero M274, potrete contare su un supporto esperto nella selezione della soluzione finanziaria più vantaggiosa per le vostre esigenze.

* Assistenza Burocratica Completa: Gestiamo per te tutti gli adempimenti burocratici, semplificando il processo e garantendo una procedura senza intoppi.

* Attivazione PEC e Firma Digitale: Dove necessario, ti forniamo assistenza nell'attivazione della Posta Elettronica Certificata e nella firma digitale per una partecipazione sicura ad un’asta telematica.

* Analisi Chiara dei Costi: Ti forniamo un'analisi dettagliata e trasparente dei costi, in modo che tu possa pianificare il tuo investimento con fiducia.

* Partecipazione All'Asta con Supporto Personale: Ti accompagniamo durante l'asta, offrendoti supporto personale e consulenza professionale per prendere decisioni informate.

* Assistenza Post-asta Completa: Il nostro impegno non finisce con l'asta. Continuiamo a seguirti e assisterti fino alla consegna delle chiavi, garantendo una transizione senza stress e senza problemi.

L'immobile viene venduto dal tribunale tramite asta giudiziaria e il prezzo indicato si riferisce all'offerta minima. Per chi acquista come prima casa, sono previste agevolazioni.

Cerchi casa all'Asta?
Ti sei già informato?
Pensi che il mutuo al 100% sia solo una pubblicità?
Astexte, la soluzione!


Cosa aspetti?
Chiama adesso!

Caratteristiche principali
Codice
19092025meC756
Città
Giardini Naxos
Categoria
Appartamento
Prezzo
65.077 €
Locali
5
Mq
123
Box
1
Mq Box
39
Classe energetica
G

Accessori: Veranda

Mappa
Via Ticino 23, Giardini Naxos (ME)
Video
Richiedi informazioni
Invia
Condividi su
Cookie preference